When overhauling a loco, a good drawing can save thousands of pounds and hundreds of hours of hard graft. Without a drawing you’ll need to reproduce new drawings, which requires a lot of expertise and time, plus a great deal of confidence that you’ve got your measurements right. Original drawings give you certainty that you can manufacture exactly what came out of the workshop a hundred years ago. Moreover they can teach you all the lessons that the original engineers learned over the locomotive’s life – the small incremental changes they made to the design to improve performance and safety.
And that’s been no different with our project to restore 60103 Flying Scotsman. Over the course of its 10 year overhaul we have digitised hundreds of drawings from the LNER’s Doncaster drawing office. Drawings like this one of the combination lever (part of the motion):

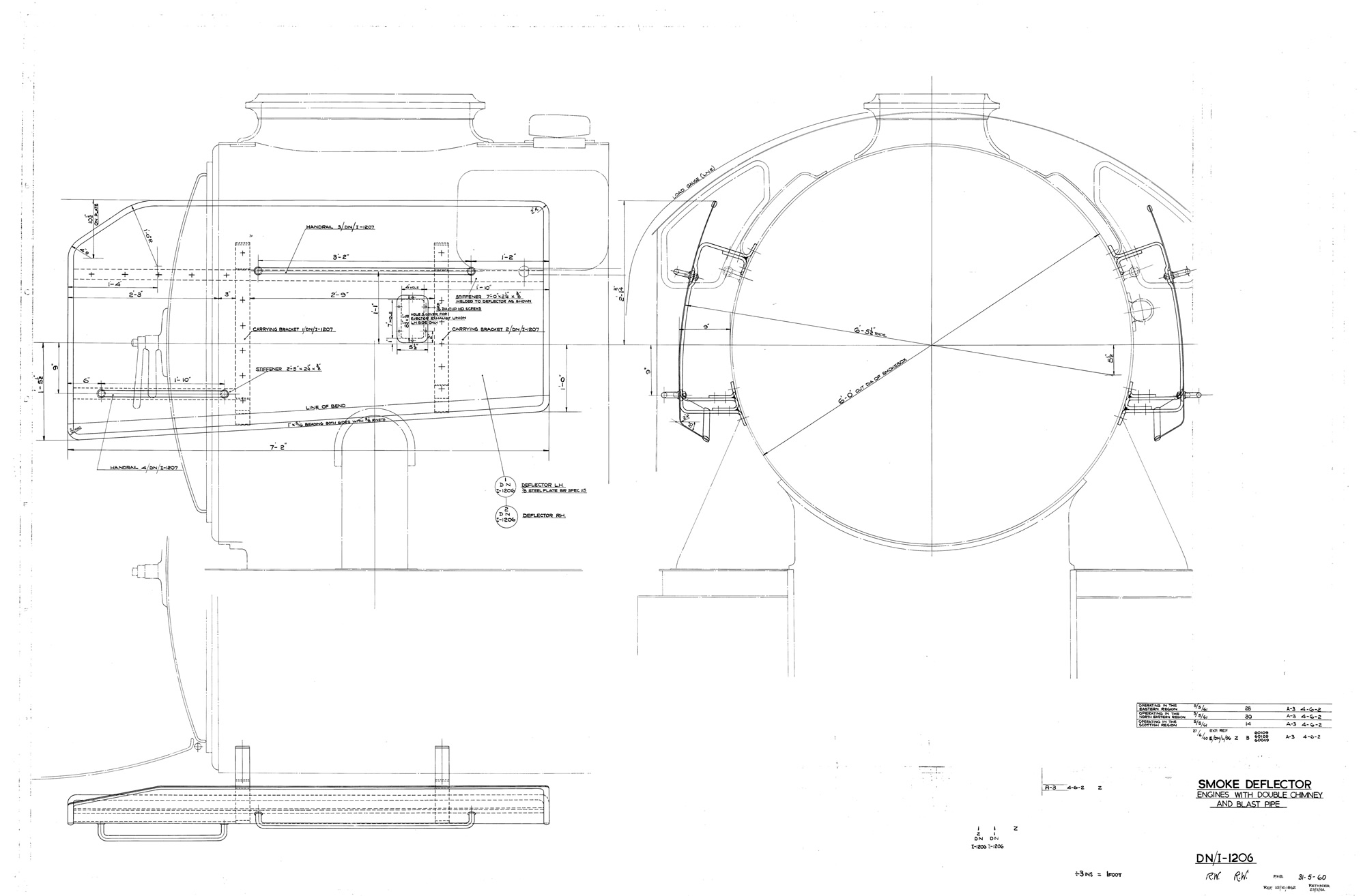
Or this drawing that we used to fabricate the new smoke deflectors:

However, we’ve recently had one more drawing to digitise. It hasn’t been used in the restoration but given how beautiful it is, it deserved special attention:

This fantastic coloured general arrangement shows Sir Nigel Gresley’s A1 class as built, just how Flying Scotsman appeared until it was rebuilt as an A3 in 1947.The drawing was signed by Sir Gresley himself in 1923 and we believe it spent much of its life hanging in the CME’s Doncaster office. It would have taken many hours of careful work to painstakingly hand draw and colour this drawing – all the more daunting for the draughtsman given where it was to spend its life.
We’ve spent the last few months conserving the drawing and then digitising it. It has returned to the safety of our stores for the time being to make sure its vibrant colours are not damaged by light, but an original waxed linen version is available to view and photograph on request for any visitor to the museum’s Search Engine library.
Also, from the 25 February and throughout the Flying Scotsman season, we are offering special prices on copies of this drawing only in Search Engine, with up to 80% off our normal prices on a selection of Scotsman prints.
If it was good enough to hang on Gresley’s office wall, you might like it as well.
A Marvel of historic engineering
yes it is marvel of engineering
it
What is the drawing number of the general arrangement, Thanks.
The colour GA above doesn’t have a number because it was never part of Doncaster’s main drawings. However, an identical b/w drawing does exist – it is drawing Q-90 and there is a different GA for the A3 class which is Q-96. You can call in to view them in Search Engine (pre-booking is recommended in case we’re busy) where you can photograph them or buy prints from our sale. Alternatively order scans or prints using the form on our website at: http://www.nrm.org.uk/researchandarchive/~/media/ca8deb9ecba944bc82961cc3c5cbcfc1.ashx
Hi Chris. Could you please tell me how to purchase the coloured drawing of the Flying Scotsman;1923
Thanks. Thirza Colllins
Beautiful and fascinating technical drawing.
Hi. Is the image featured of the Flying Scotsman still available and if not what other images are available.
I live in Melbourne (Australia)and would love to have a copy of this beautiful train.
Thanking you,
Thirza Collins
As page not found on website form can you advise how to purchase cloured GA of the flying Sclotsman
I wanted to see if before it was cut down to go North of newcastle. That is also a part of its history.
Hello Looking for suggestion for a drawing/side profile of Flying Scotsman with double tenders to produce a tribute detailed metal profile to my Grandfather John Robert Moore from Peterborough who was a LNER and BR main line driver. I have access to autoCAD and Photo shop soft ware
My grandfather, Herbert George Youdan, worked at Carr sheds and my father recalled him coming home looking excited saying “4472 came in today!”. I understand his bother, Frederick Henry Youdan, designed the boilers for Flying Scotsman. Unfortunately his drawings were lost in the 1970’s. I have made a number of unsuccessful attempts in the past to find confirmation of this. Any assistance in tracing this family history would be much appreciated. I can travel to York if necessary.
Hello! I have a 5″ gauge A3 ‘Flying Scotsman’ with two tenders (both are exactly the same). I would like to convert one of the tenders to the shape of the real second tender. Are there any drawings floating around of the second tender No. 4472?
So cool! I love seeing the history of older trains 🙂